Das Inselhouse
Wie eine
sanfte Nordseebrise ...
Das House in der Knyphausenstraße mit Schlüsselposition zwischen Stadt, Meer und Dünenlandschaft – mittendrin und doch geruhsam, erholsam, achtsam. Mit Fingerspitzengefühl nordisch sanft gestylt und lichtdurchflutet. Lieblingsapartments mit Terrasse, Balkon oder spektakulärer Penthouse-Terrasse mit dem Gefühl, über der Insel zu schweben. High-End-Urlaubsgefühle.
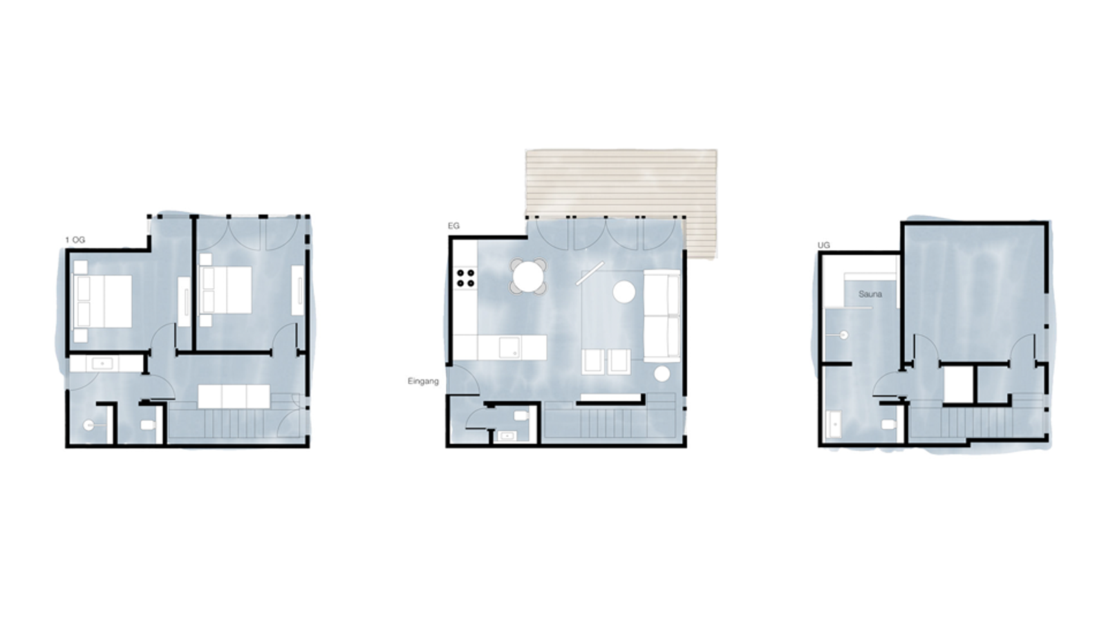
Apartmenthaus · 22 Quartiere · 2 bis 6 Personen
|
|
|
|
|
Inselhouse Apartments
Harmonisch, hell
und an alles gedacht.

Das sagen unsere Gäste
"Mal wieder eine wunderschöne, entspannte Zeit auf der Insel, dank der tollen Wohnung im INSELHOUSE
Die Freundlichkeit und Professionalität , die Einrichtung ist toll und alles aufeinander abgestimmt , sehr hochwertig und eine TOP Ausstattung."
Rüdiger
Inselhouse Wellness
Side by Side
und wundervoll
schweißtreibend ...
Das Inselhouse Souterrain birgt so Einiges: durch die mit Sport - Spaß - Sauna gekennzeichnet Tür hindurch, und man landet im Wellness-und Freizeitbereiches des Houses, der mit Peloton und gut selektierten Geräten top ausgestattet ist. Einen Schritt weiter der Sauna- und Ruhebereich mit urgemütlichen Tagesbetten zum Durchatmen. Wer lieber spielerisch ins Schwitzen kommen möchte: da ist die Inselhouse-Entertainment-Area mit Kicker und Tischtennis genau das Richtige. Für kleinere Gäste gibt es eine entzückende Spielecke mit Herd und Statisten, die bald zu besten Freunden werden. In diesem Inselhouse-Bereich wurde schon der ein oder andere Regentag auf der Insel zur schönsten Urlaubserinnerung ...
